MAISON AVEC 4 CHAMBRES, JARDIN DE 200m² et GARAGE - Proche Gare de La-Garenne-Colombes
COLOMBES 92700
880 000 € *
* Honoraires à la charge du vendeur
Proposé par votre agence :
50 Grande Rue Charles de Gaulle
92600 Asnières-sur-Seine
Réf : 5307
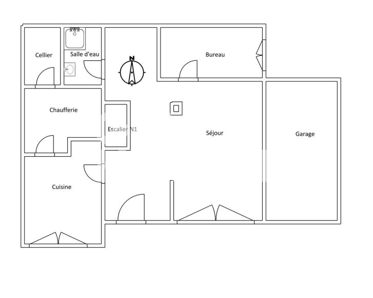
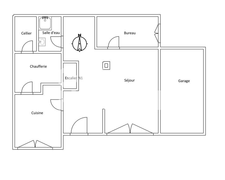
Proche de la Gare de La-Garenne-Colombes (5min environ), sur une parcelle de 282m², venez découvrir cette belle maison familiale d'une surface habitable de 170m² (138.93m² carrez) sur 2 niveaux offrant au rez-de-chaussée: un grand séjour de 45m² (ave... Voir plus
140 m²
7 pièce(s)
4 chambre(s)
1 sdb
1 sde
2 parking(s)
MAISON AVEC 4 CHAMBRES, JARDIN DE 200m² et GARAGE - Proche Gare de La-Garenne-Colombes
Descriptif
Réf : 5307
Proche de la Gare de La-Garenne-Colombes (5min environ), sur une parcelle de 282m², venez découvrir cette belle maison familiale d'une surface habitable de 170m² (138.93m² carrez) sur 2 niveaux offrant au rez-de-chaussée: un grand séjour de 45m² (ave... Voir plus
140 m²
7 pièce(s)
4 chambre(s)
1 sdb
1 sde
2 parking(s)
Fiche technique du bien
Bilan énergétique
Logement extrêmement performant
Logement extrêmement peu performant
passoire énergétique
consommation (énergie primaire)
146
kWh/m².an
émissions (gaz à effet de serre)
45*
kg CO₂/m².an
* Dont émissions de gaz à effet de serre
peu d'émissions de CO₂
émissions de CO₂ très importantes
45
kg CO₂/m².an
Les informations sur les risques auxquels ce bien est exposé sont disponibles sur le site Géorisques : www.georisques.gouv.fr
Estimation du coût annuel en énergie pour un usage standard entre 1590€ et 2200€ au 01/01/2021
Simuler votre prêt immobilier avec notre partenaire
Le quartier
Découvrez d’autres biens dans le quartier
50 Grande Rue Charles de Gaulle
92600 Asnières-sur-Seine
Les horaires
Lundi
09h30 - 12h30 / 14h00 - 19h00
Mardi
09h30 - 12h30 / 14h00 - 19h00
Mercredi
09h30 - 12h30 / 14h00 - 19h00
Jeudi
09h30 - 12h30 / 14h00 - 19h00
Vendredi
09h30 - 12h30 / 14h00 - 19h00
Samedi
09h30 - 12h30 / 14h00 - 18h00
Dimanche
Fermé
